Bifamiliare
OGGETTO:
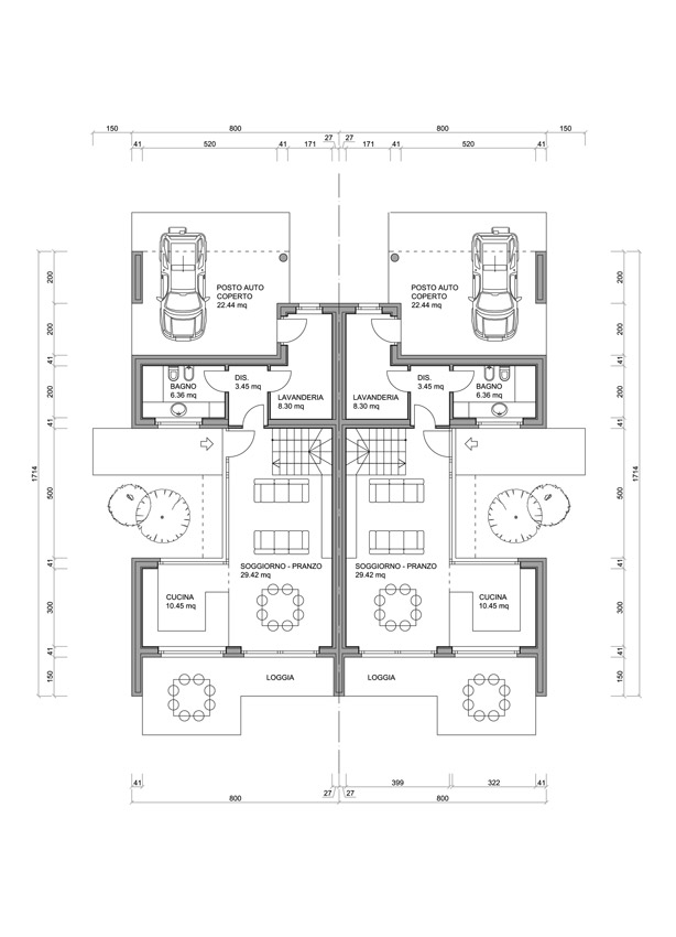
PROGETTO PER UN FABBRICATO AD USO RESIDENZIALE BIFAMILIARE
COMMITTENTE:
Privato
CRONOLOGIA:
2018 (non realizzato)
LOCALIZZAZIONE:
San Vito di Fagagna (UD)




OGGETTO:
PROGETTO PER UN FABBRICATO AD USO RESIDENZIALE BIFAMILIARE
COMMITTENTE:
Privato
CRONOLOGIA:
2018 (non realizzato)
LOCALIZZAZIONE:
San Vito di Fagagna (UD)




Luca Rosso Architetto
Via San Biagio, 33
33035 Martignacco (UD)
cell. +39 393 4025186
e-mai lucarossoarchitetto@gmail.com
PEC luca.rosso@archiworldpec.it